
EVO
Un cahier des
charges clair et
précis
Le concept ‘EVO by Domus’ est une nouvelle manière d’imaginer votre maison. Dès le départ, pensez à l’avenir et à l’espace dont vous aurez besoin. Modulez votre maison selon vos besoins actuels avec la possibilité de la faire évoluer dans le futur. Domus vous simplifie la vie !
Découvrez 2 vidéos supplémentaire présentant le modèle EVO.
100%
tradi-
tionnel
Une qualité d'exécution des travaux sans compromis !
Caractéristiques
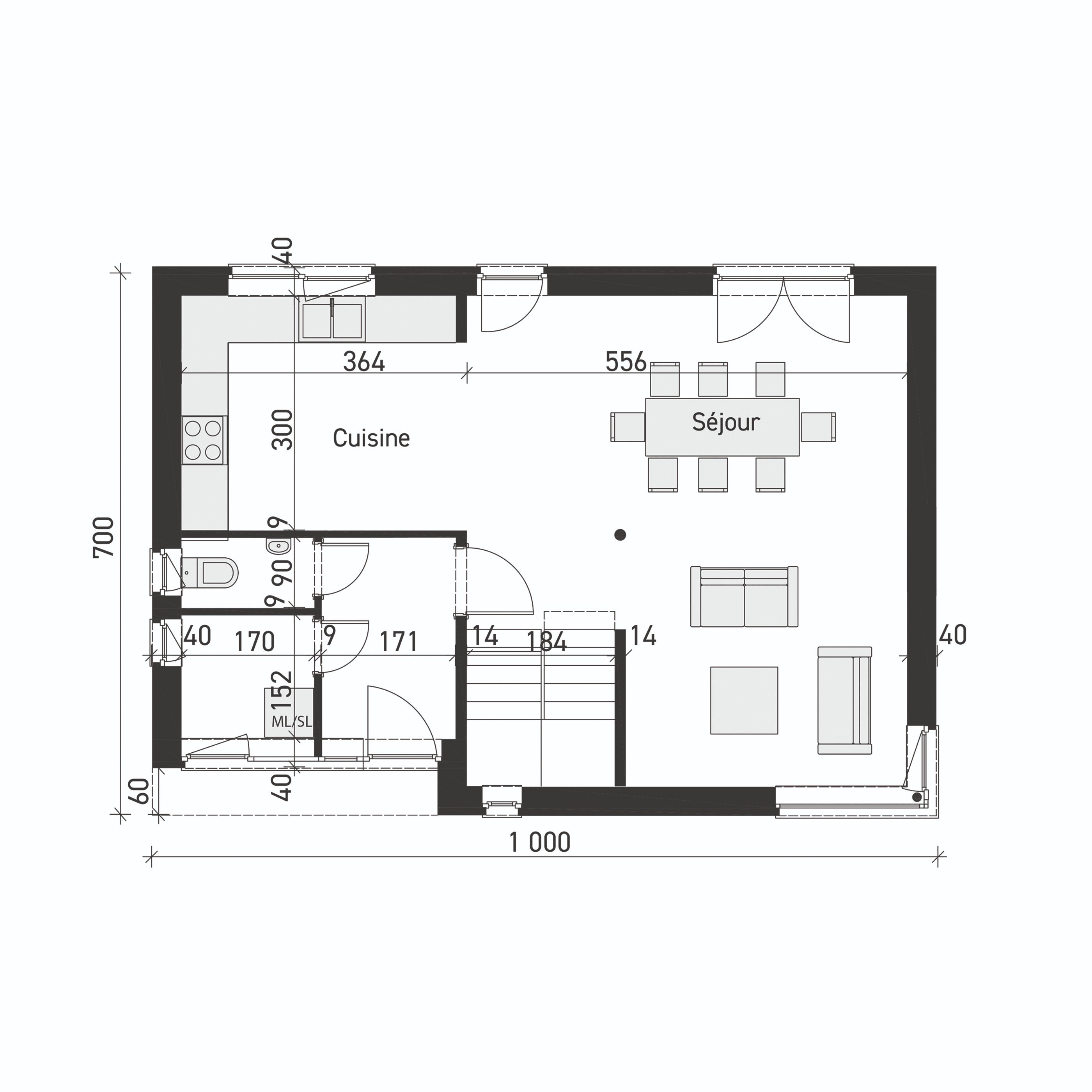
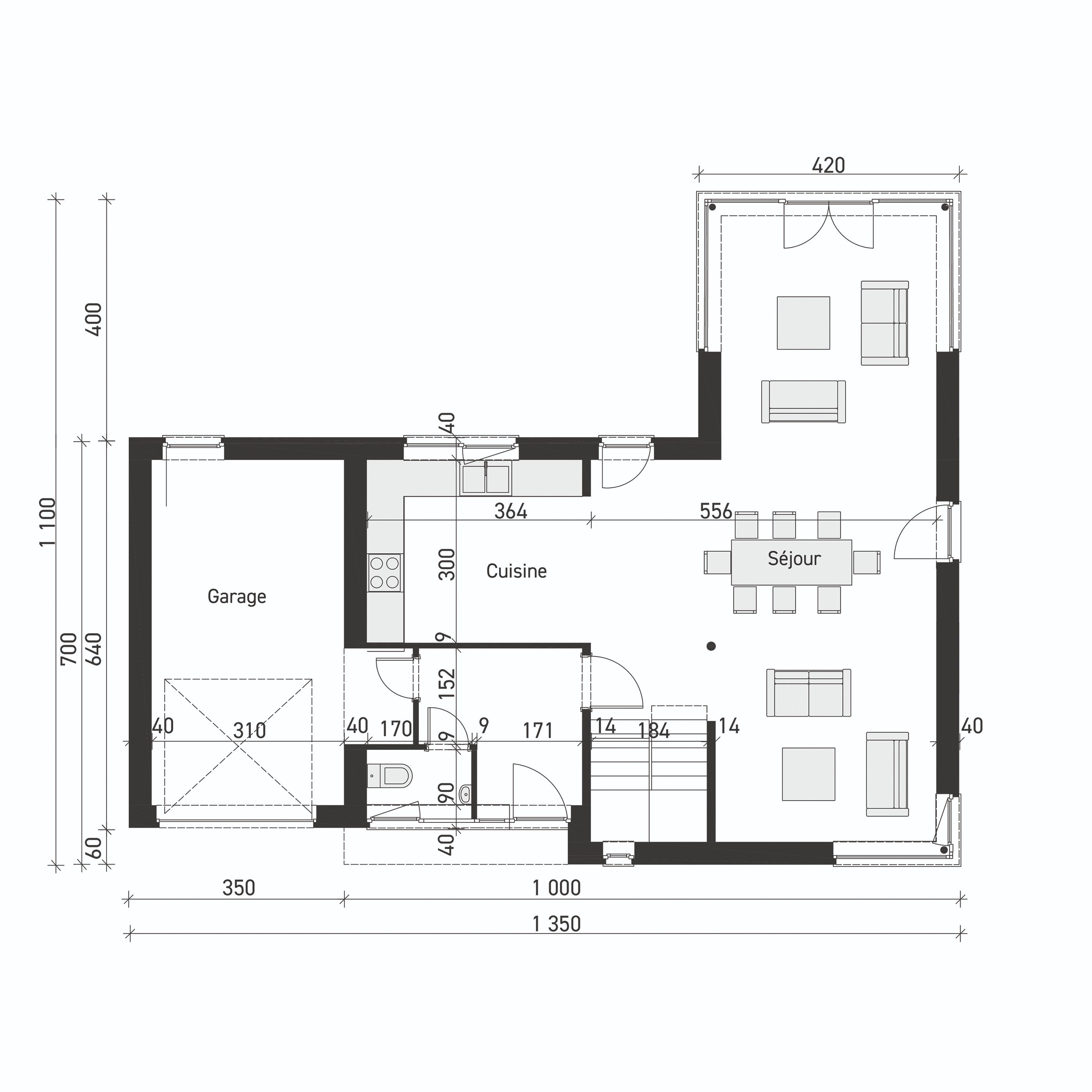
Rez-de-chaussée
109,20 m² y compris option 1 & 2
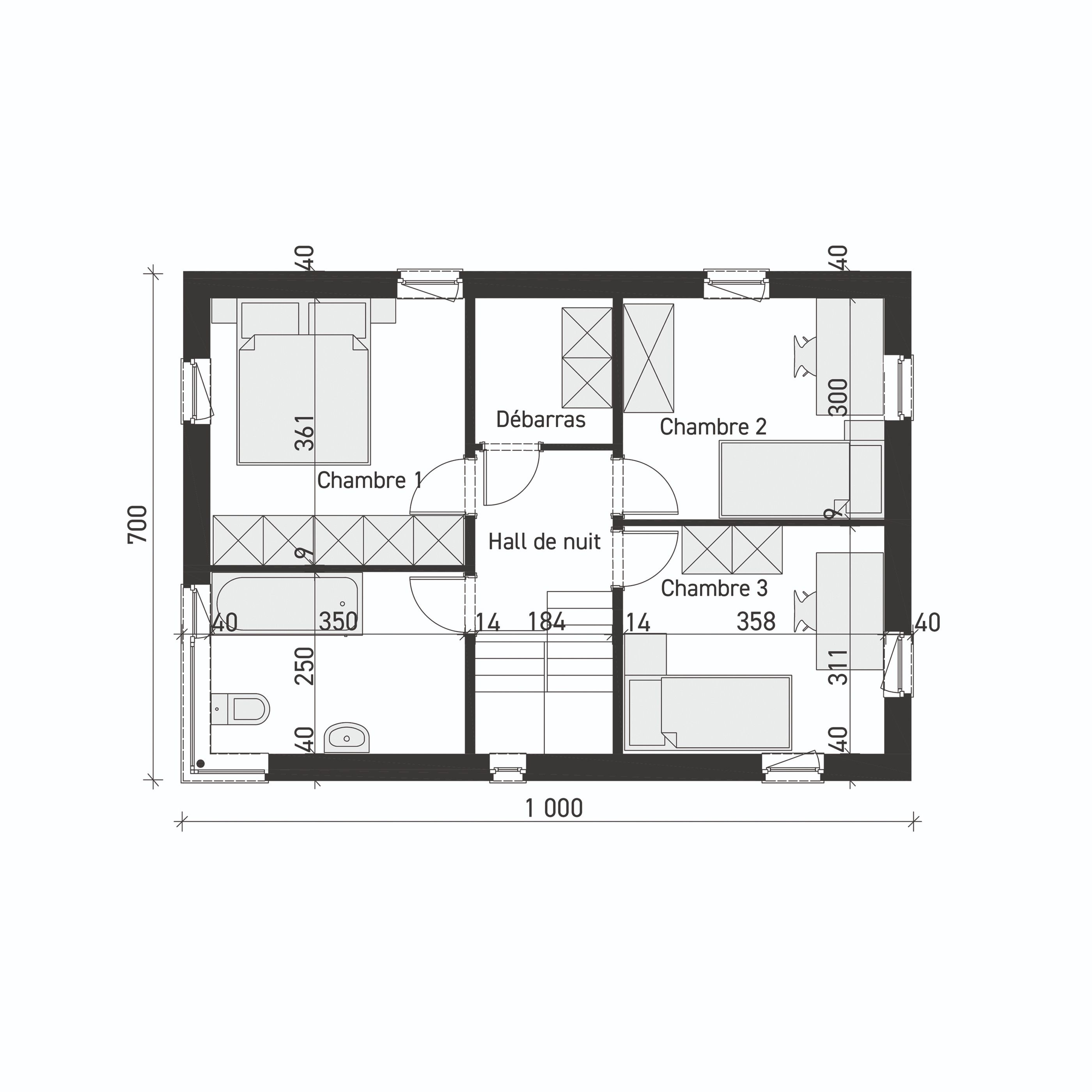
Etage
109,20 m² y compris option 3
Total
218,40 m²
Cuisine
10,92 m²
Séjour
50,50 m² y compris option 2
Hall d'entrée et WC
5,84 m²
Buanderie
2,58 m²
Garage
20,00 m² (option 1)
Chambre 1
12,64 m²
Chambre 2
10,74 m²
Chambre 3
11,13 m²
Chambre 4
40,00 m² (option 3)
Salle de bains
8,75 m²
Hall de nuit
3,86 m²
Débarras
4,78 m²

Pack Zéro Energie
Domus propose gratuitement son pack “Zéro Energie”
18 panneaux photovoltaïques
Puissance installée de 8.000 Watts Crête
Onduleur adapté
Batterie domestique de 5 KWh
Niko Home Control

Maisons réalisées
Fort de son expérience, DOMUS Concept construit des maisons basse énergie 100% traditionnelles. Ces maisons clé sur porte allient ventilation, isolation de pointe, installation de chauffage par pompe à chaleur et panneaux photovoltaïques.





