
M250
Un cahier des
charges clair et
précis
Maison clé sur porte basse énergie proposant une habitation de 150 m² répartis sur 2 niveaux. La maison dispose d’un living, une cuisine, une buanderie, un bureau, 3 grandes chambres de une salle de bain.
Nos maisons à toiture à versants vous offrent la possibilité d’aménager le niveau +2.
100%
tradi-
tionnel
Une qualité d'exécution des travaux sans compromis !
Caractéristiques
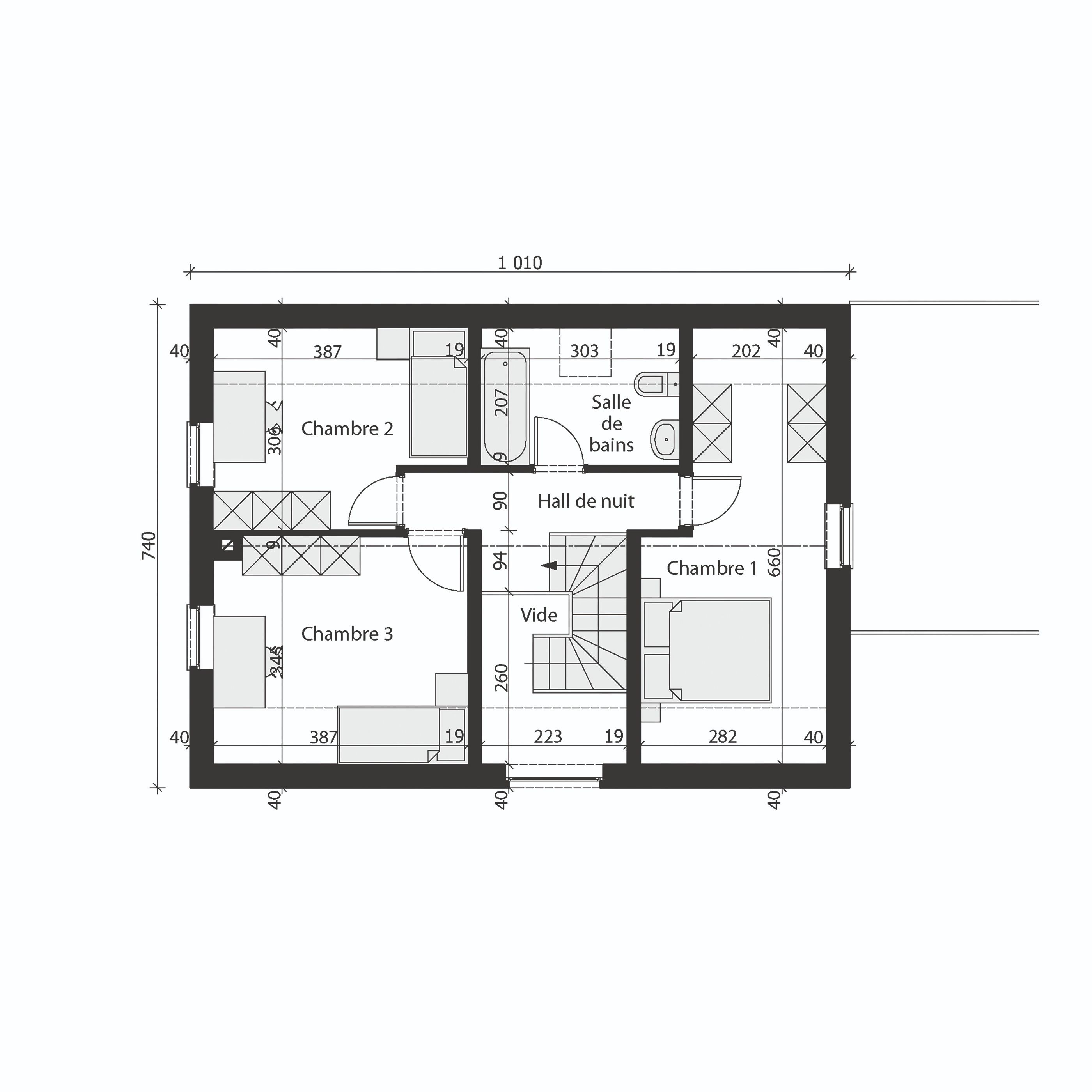
Rez-de-chaussée
74,74 m²
Etage
74,74 m²
Total
149,48 m²
Cuisine
9,12 m²
Séjour
25,54 m²
Hall d'entrée et WC
7,69 m²
Buanderie
6,08 m²
Chambre 1
15,90 m²
Chambre 2
10,84 m²
Chambre 3
13,31 m²
Salle de bains
6,27 m²
Hall de nuit
5,05 m²

Pack Zéro Energie
Domus propose gratuitement son pack “Zéro Energie”
18 panneaux photovoltaïques
Puissance installée de 8.000 Watts Crête
Onduleur adapté
Batterie domestique de 5 KWh
Niko Home Control

Maisons réalisées
Fort de son expérience, DOMUS Concept construit des maisons basse énergie 100% traditionnelles. Ces maisons clé sur porte allient ventilation, isolation de pointe, installation de chauffage par pompe à chaleur et panneaux photovoltaïques.





