
M220
Un cahier des
charges clair et
précis
Maison clé sur porte basse énergie proposant une habitation de 150 m² répartis sur 2 niveaux. La maison dispose d’un living, une cuisine, une buanderie, 2 grandes chambres dont une pourrait être divisée en 2, une salle de bain ainsi que d'un débarras.
Nos maisons à toiture à versants vous offrent la possibilité d’aménager le niveau +2.
100%
tradi-
tionnel
Une qualité d'exécution des travaux sans compromis !
Caractéristiques
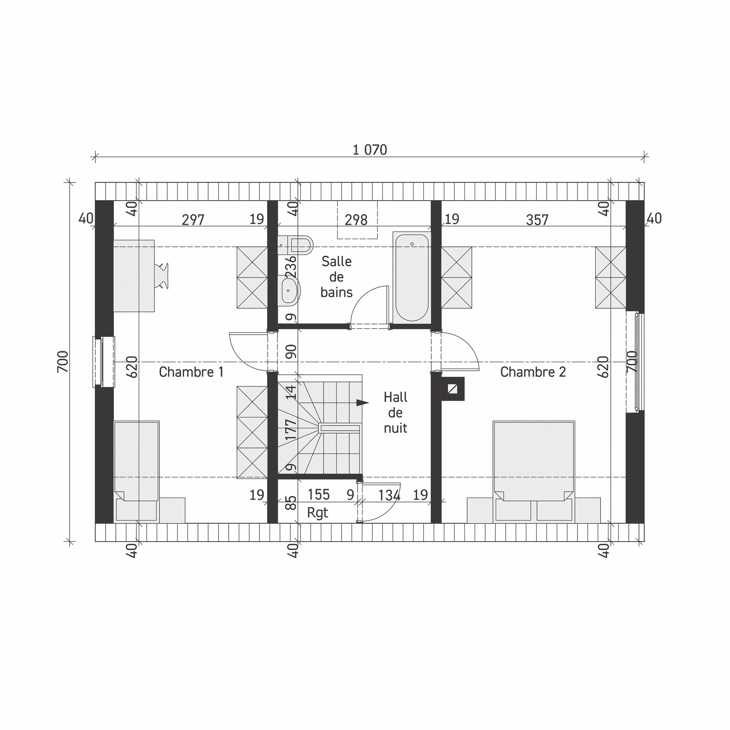
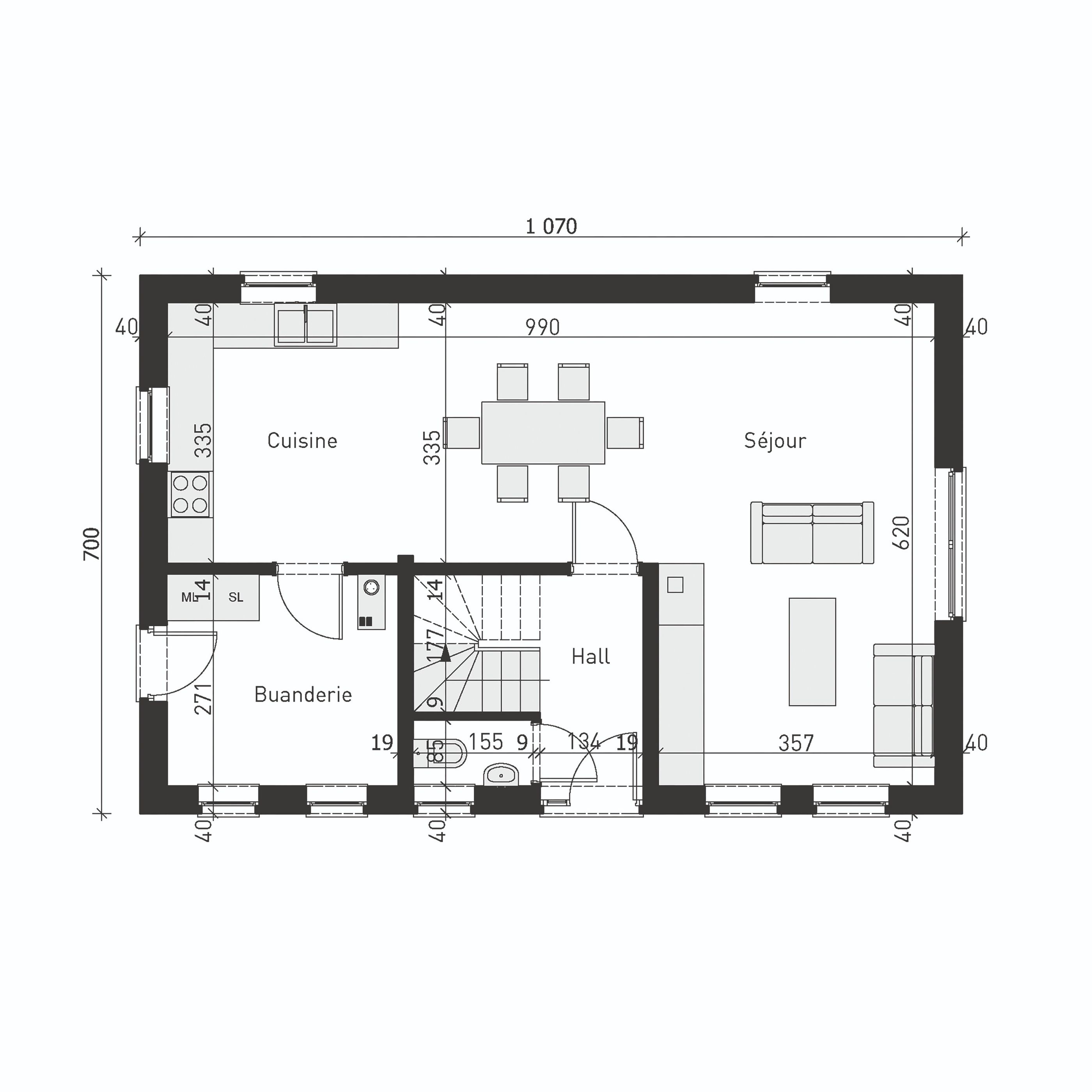
Rez-de-chaussée
74,90 m²
Etage
74,90 m²
Total
149,80 m²
Cuisine
9,95 m²
Séjour
32,25 m²
Hall d'entrée et WC
8,08 m²
Buanderie
8,05 m²
Chambre 1
18,41 m²
Chambre 2
22,13 m²
Salle de bains
7,03 m²
Hall de nuit
5,75 m²
Local rangement
1,32 m²

Pack Zéro Energie
Domus propose gratuitement son pack “Zéro Energie”
18 panneaux photovoltaïques
Puissance installée de 8.000 Watts Crête
Onduleur adapté
Batterie domestique de 5 KWh
Niko Home Control

Maisons réalisées
Fort de son expérience, DOMUS Concept construit des maisons basse énergie 100% traditionnelles. Ces maisons clé sur porte allient ventilation, isolation de pointe, installation de chauffage par pompe à chaleur et panneaux photovoltaïques.





