
MC500
Un cahier des
charges clair et
précis
Maison clé sur porte basse énergie proposant une habitation de 323 m² répartis sur 3 niveaux. La maison dispose d’un très grand living, une cuisine, une buanderie, un bureau, 4 grandes chambres, une salle de bain, une salle de douche, un double garage et de grandes caves
100%
tradi-
tionnel
Une qualité d'exécution des travaux sans compromis !
Caractéristiques
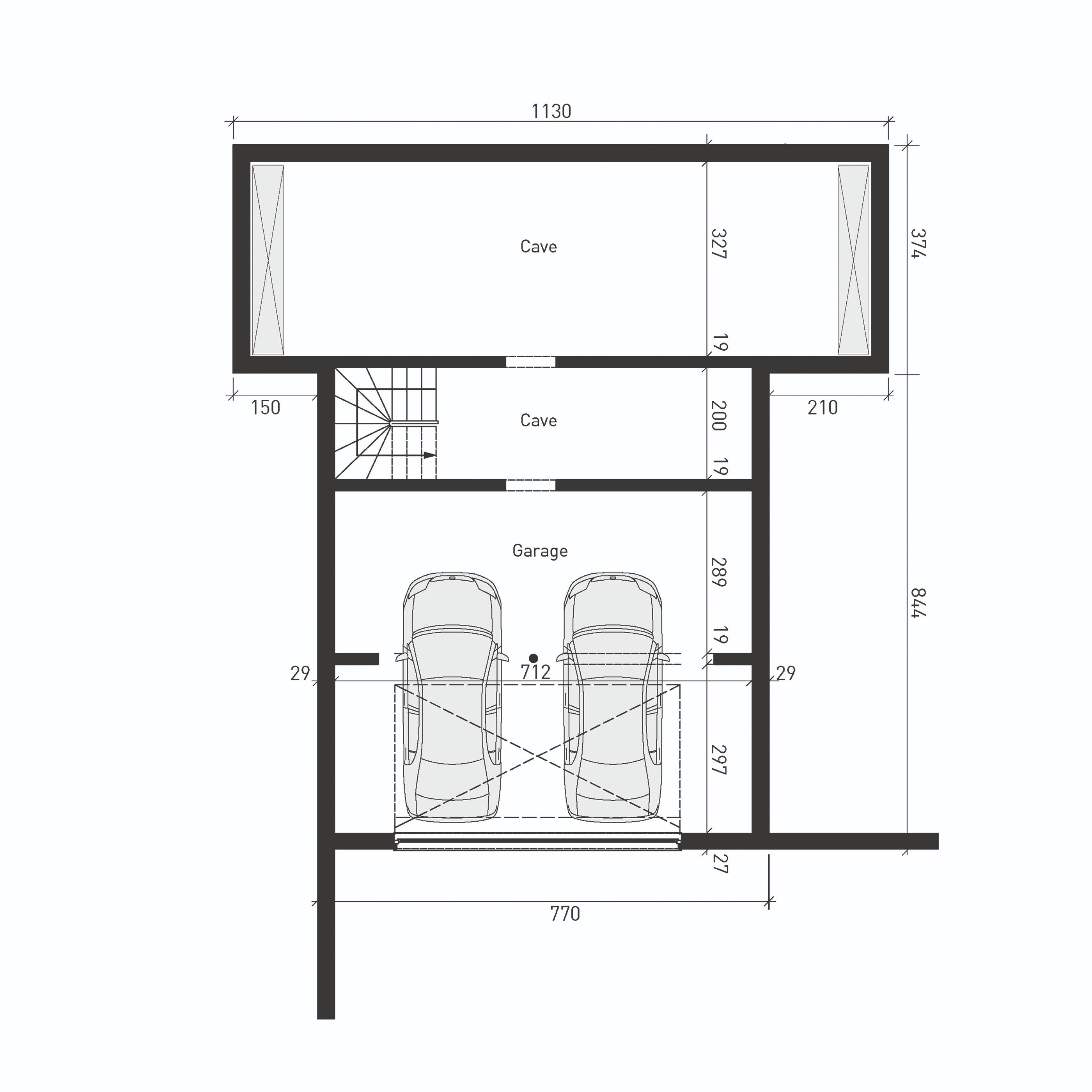
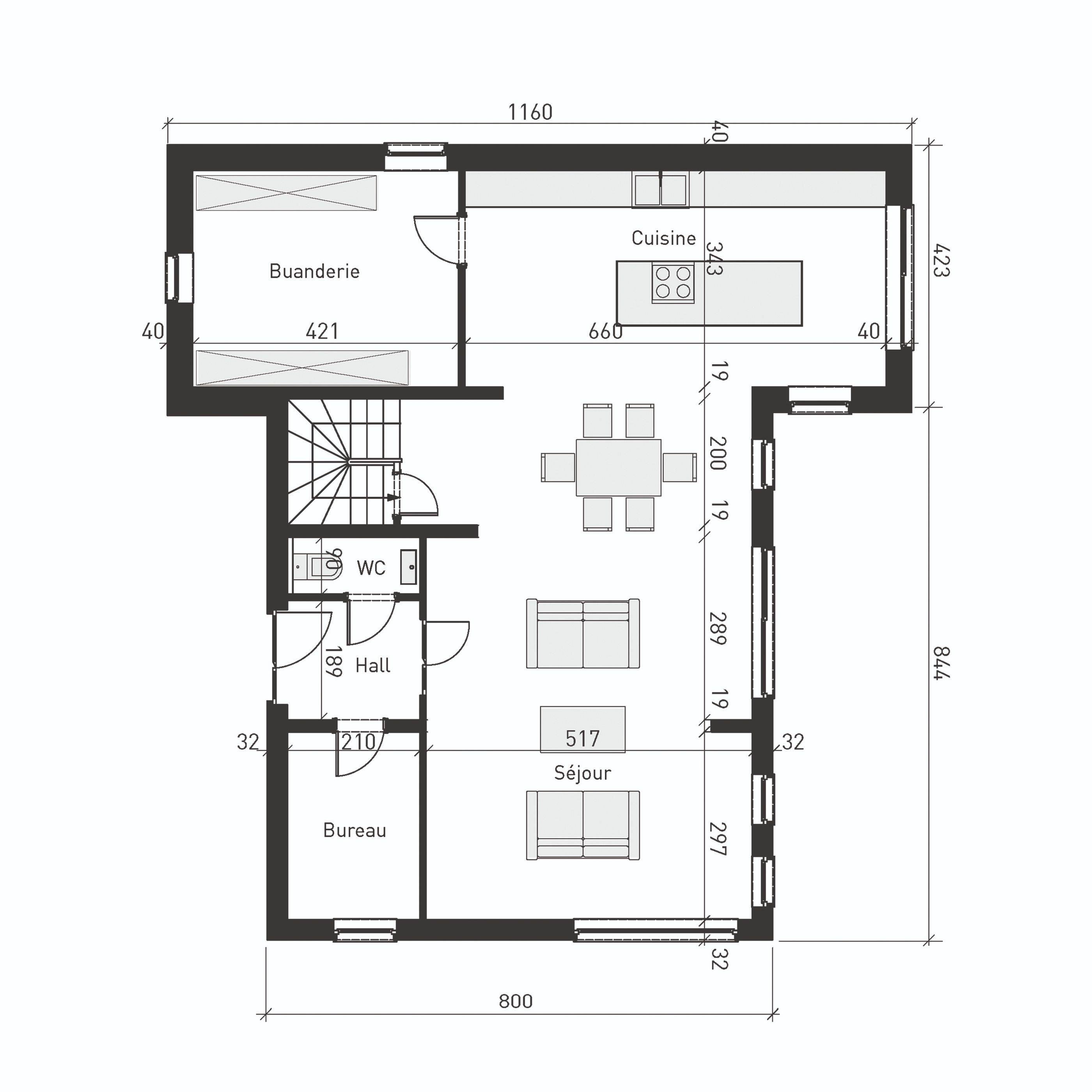
Rez-de-chaussée
116,59 m²
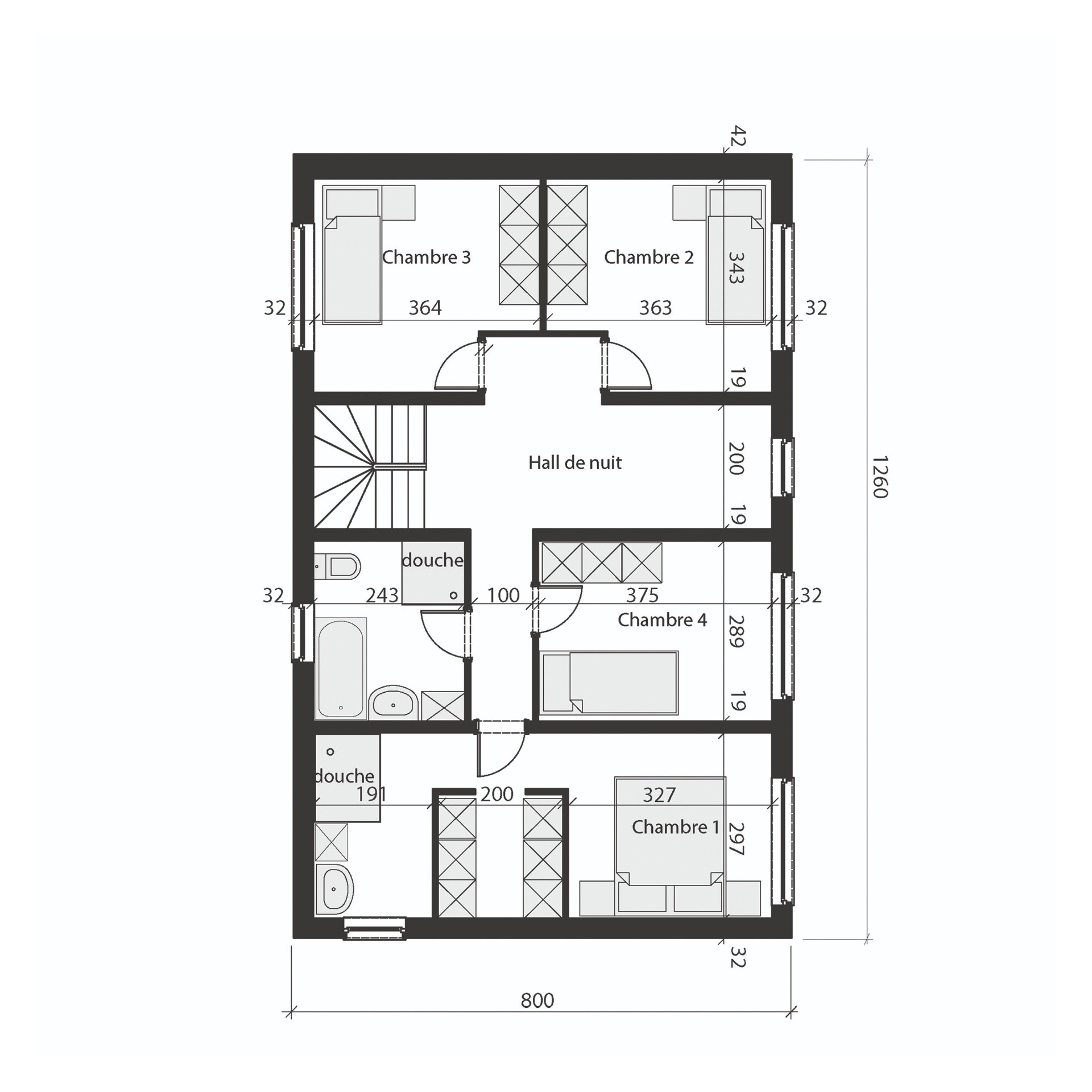
Etage
100,80 m²
Sous-sol
116,59 m²
Total
243,98 m²
Cuisine
22,64 m²
Séjour
43,58 m²
Hall d'entrée et WC
6,07 m²
Buanderie
14,44 m²
Bureau
6,24 m²
Garage
43,08 m²
Chambre 1 / dressing / sdb
21,38 m²
Chambre 2
11,45 m²
Chambre 3
11,45 m²
Chambre 4
10,84 m²
Salle de douches
7,02 m²
Hall de nuit
10,44 m²
Hall cave
14,24 m²
Cave
37,04 m²

Pack Zéro Energie
Domus propose gratuitement son pack “Zéro Energie”
18 panneaux photovoltaïques
Puissance installée de 8.000 Watts Crête
Onduleur adapté
Batterie domestique de 5 KWh
Niko Home Control

Maisons réalisées
Fort de son expérience, DOMUS Concept construit des maisons basse énergie 100% traditionnelles. Ces maisons clé sur porte allient ventilation, isolation de pointe, installation de chauffage par pompe à chaleur et panneaux photovoltaïques.





