
T3
Un cahier des
charges clair et
précis
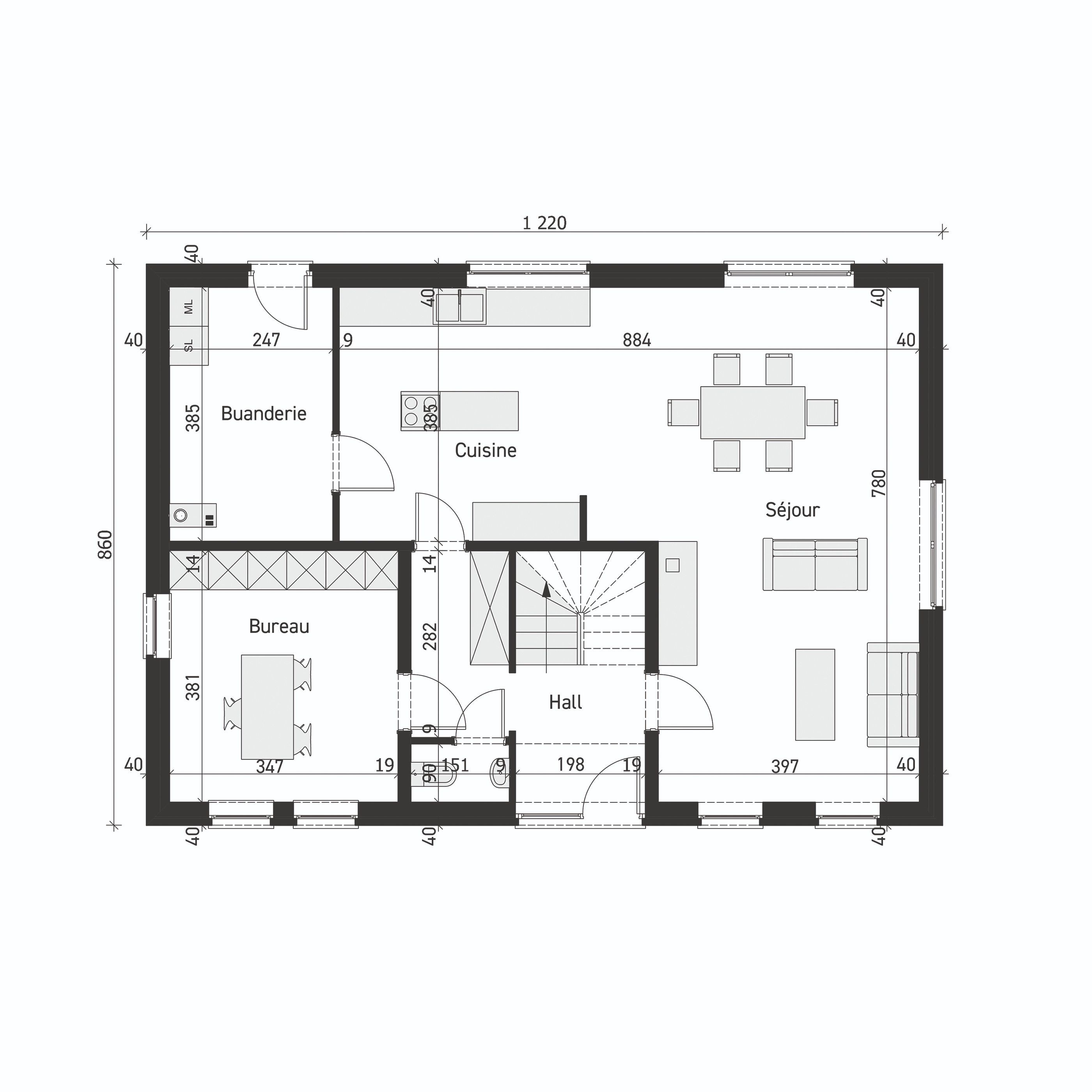
Maison clé sur porte basse énergie proposant une habitation de 210 m² répartis sur 2 niveaux. La maison dispose d’un grand living, une cuisine, une buanderie, un bureau, 3 grandes chambres, une salle de bain ainsi qu’un débarras.
Nos maisons à toiture à versants vous offrent la possibilité d’aménager le niveau +2.
100%
tradi-
tionnel
Une qualité d'exécution des travaux sans compromis !
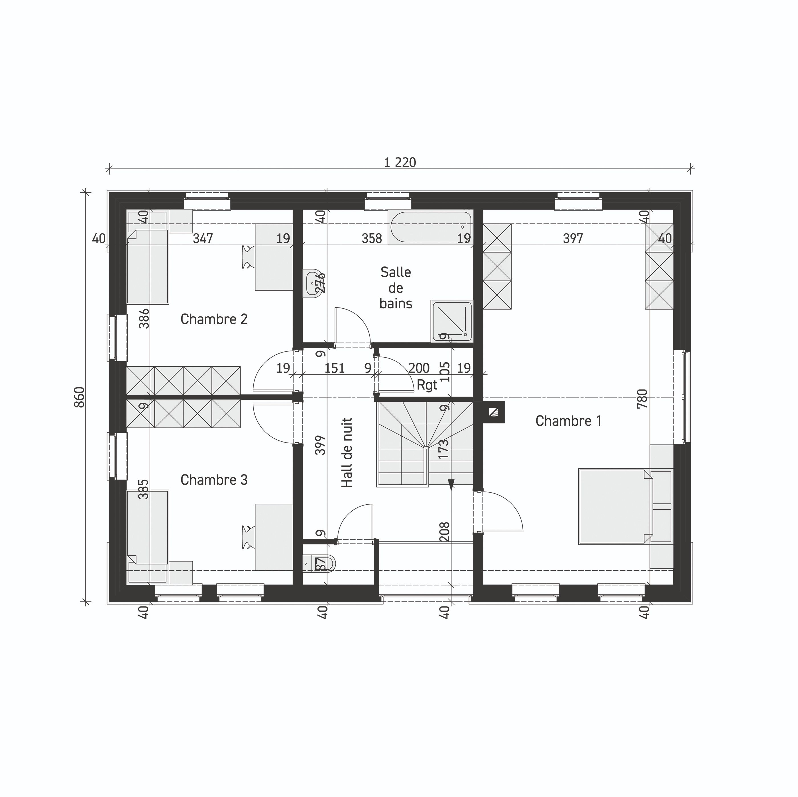
Caractéristiques
Rez-de-chaussée
104,92 m²
Etage
104,92 m²
Total
209,84 m²
Cuisine
15,40 m²
Séjour
33,76 m²
Hall d'entrée et WC
13,64 m²
Buanderie
9,51 m²
Bureau
13,22 m²
Chambre 1
30,97 m²
Chambre 2
13,39 m²
Chambre 3
13,36 m²
Salle de bains
9,88 m²
Hall de nuit et WC de l'étage
7,16 m²
Local rangement
2,10 m²

Pack Zéro Energie
Domus propose gratuitement son pack “Zéro Energie”
18 panneaux photovoltaïques
Puissance installée de 8.000 Watts Crête
Onduleur adapté
Batterie domestique de 5 KWh
Niko Home Control

Maisons réalisées
Fort de son expérience, DOMUS Concept construit des maisons basse énergie 100% traditionnelles. Ces maisons clé sur porte allient ventilation, isolation de pointe, installation de chauffage par pompe à chaleur et panneaux photovoltaïques.





