
M120
Un cahier des
charges clair et
précis
Maison clé sur porte basse énergie proposant une habitation de 141 m² répartis sur 2 niveaux. La maison dispose d’un living, une cuisine, 3 grandes chambres et une salle de bain ainsi que d'un garage.
Nos maisons à toiture à versants vous offrent la possibilité d’aménager le niveau +2.
100%
tradi-
tionnel
Une qualité d'exécution des travaux sans compromis !
Caractéristiques
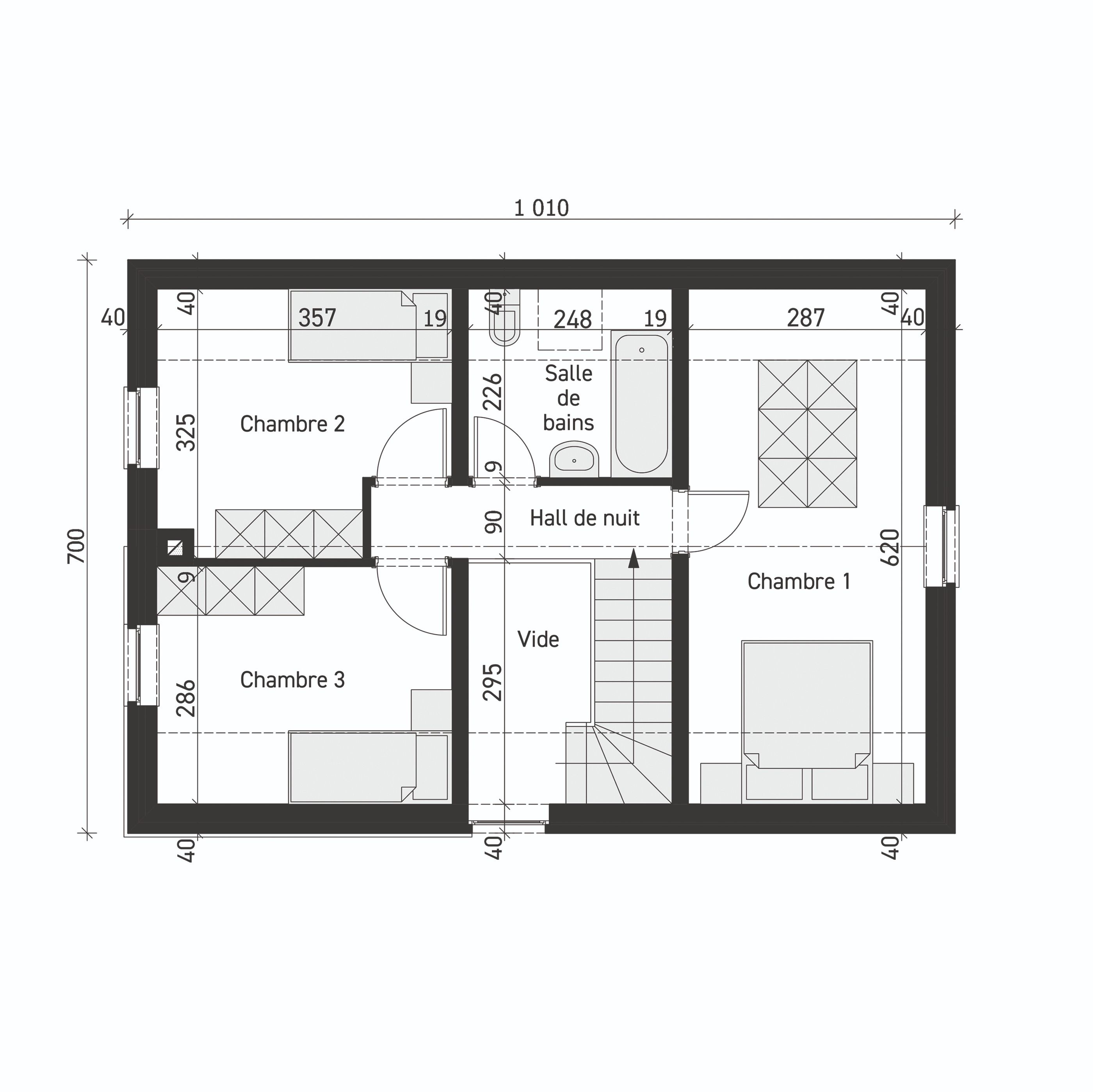
Rez-de-chaussée
70,70 m²
Etage
70,70 m²
Total
141,40 m²
Cuisine
6,72 m²
Séjour
22,13 m²
Hall d'entrée et WC
8,31 m²
Garage/Buanderie
17,80 m²
Chambre 1
17,80 m²
Chambre 2
10,60 m²
Chambre 3
10,21 m²
Salle de bains
5,60 m²
Hall de nuit
3,13 m²

Pack Zéro Energie
Domus propose gratuitement son pack “Zéro Energie”
18 panneaux photovoltaïques
Puissance installée de 8.000 Watts Crête
Onduleur adapté
Batterie domestique de 5 KWh
Niko Home Control

Maisons réalisées
Fort de son expérience, DOMUS Concept construit des maisons basse énergie 100% traditionnelles. Ces maisons clé sur porte allient ventilation, isolation de pointe, installation de chauffage par pompe à chaleur et panneaux photovoltaïques.





