
T1
Un cahier des
charges clair et
précis
Maison clé sur porte basse énergie proposant une habitation de 183 m² répartis sur 2 niveaux. La maison dispose d’un grand living, une cuisine, une buanderie, 3 grandes chambres et une salle de bain ainsi que d'un garage.
Nos maisons à toiture à versants vous offrent la possibilité d’aménager le niveau +2.
100%
tradi-
tionnel
Une qualité d'exécution des travaux sans compromis !
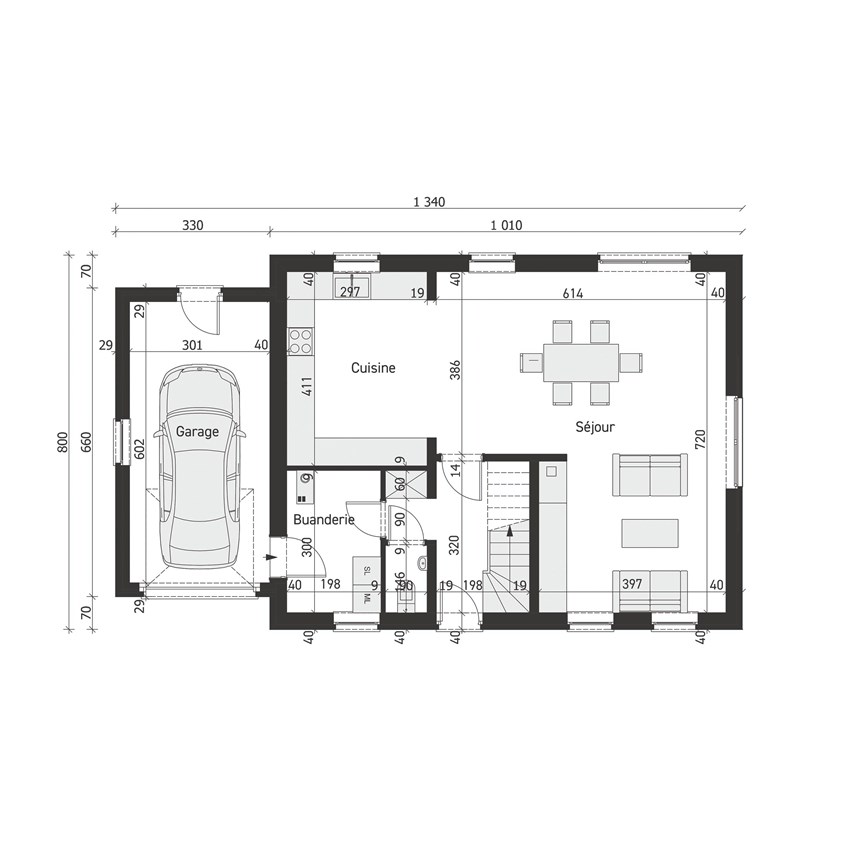
Caractéristiques
Rez-de-chaussée
102,58 m²
Etage
80,80 m²
Total
183,38 m²
Cuisine
12,21 m²
Séjour
35,61 m²
Hall d'entrée et WC
10,43 m²
Buanderie
5,94 m²
Garage
18,12 m²
Chambre 1
21,38 m²
Chambre 2
11,19 m²
Chambre 3
14,04 m²
Salle de bains
7,12 m²
Hall de nuit
3,62 m²

Pack Zéro Energie
Domus propose gratuitement son pack “Zéro Energie”
18 panneaux photovoltaïques
Puissance installée de 8.000 Watts Crête
Onduleur adapté
Batterie domestique de 5 KWh
Niko Home Control

Maisons réalisées
Fort de son expérience, DOMUS Concept construit des maisons basse énergie 100% traditionnelles. Ces maisons clé sur porte allient ventilation, isolation de pointe, installation de chauffage par pompe à chaleur et panneaux photovoltaïques.





