
M350
Un cahier des
charges clair et
précis
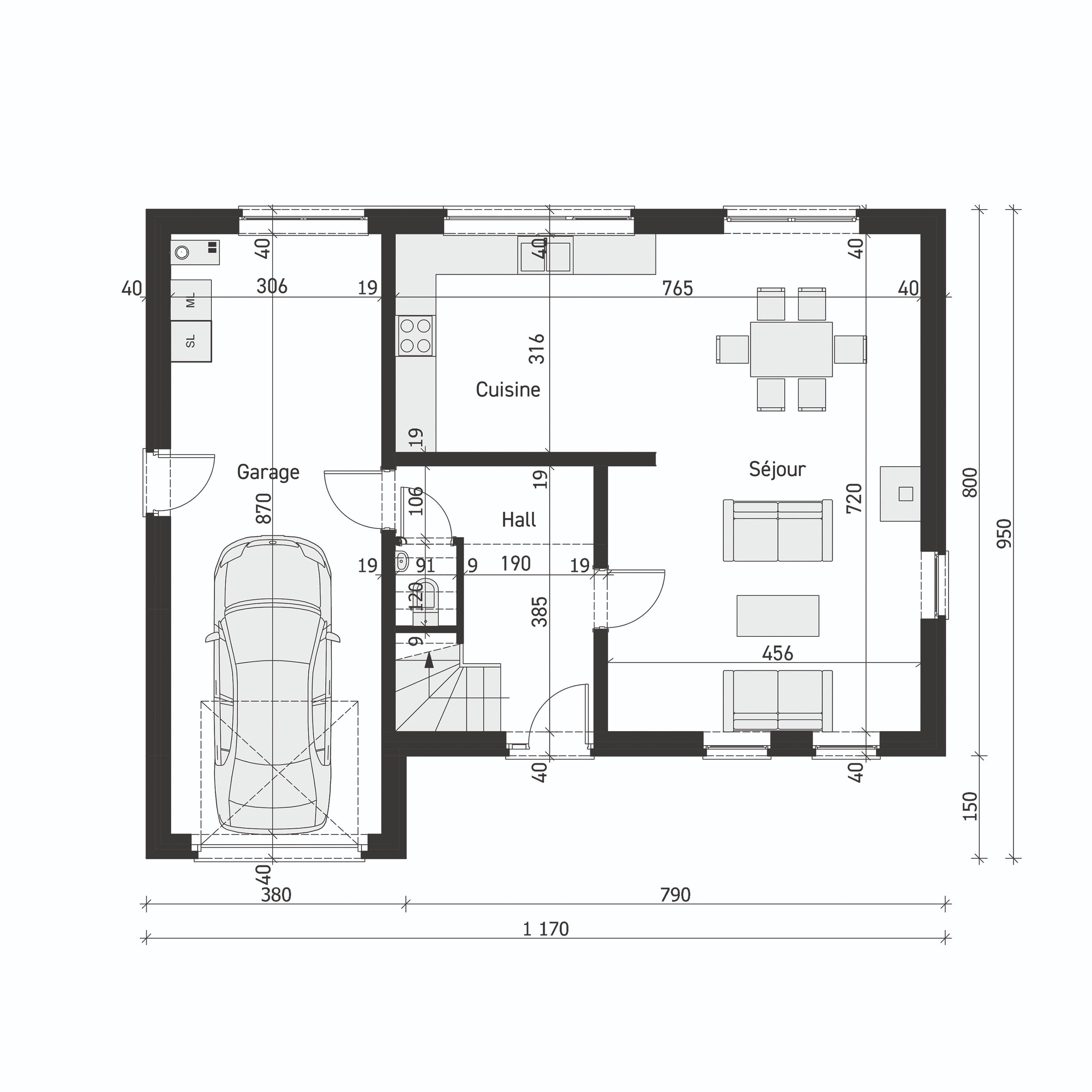
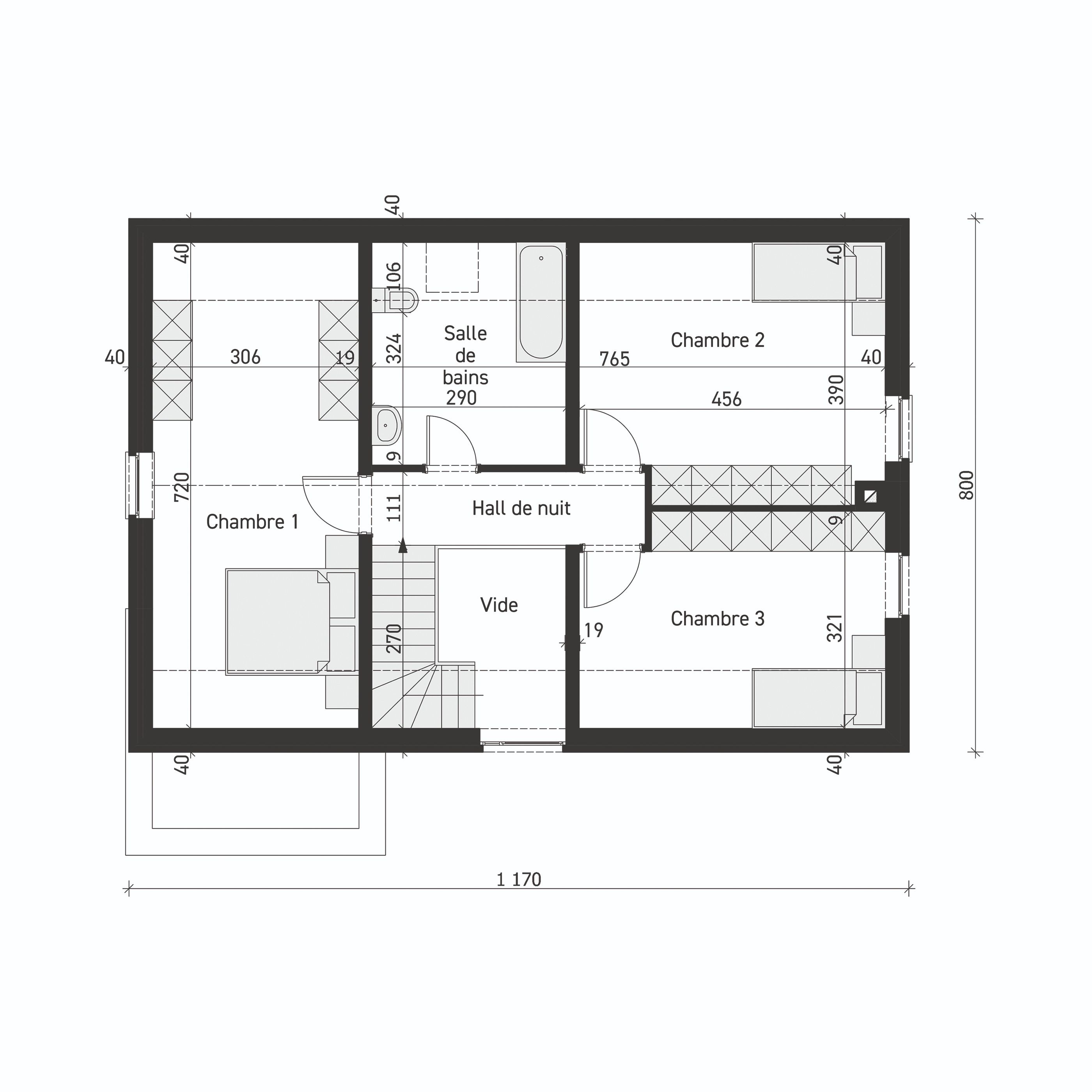
Maison clé sur porte basse énergie proposant une habitation de 193 m² répartis sur 2 niveaux. La maison dispose d’un living, une cuisine, 3 grandes chambres et une salle de bain ainsi que d'un garage.
Nos maisons à toiture à versants vous offrent la possibilité d’aménager le niveau +2.
100%
tradi-
tionnel
Une qualité d'exécution des travaux sans compromis !
Caractéristiques
Rez-de-chaussée
99,30 m²
Etage
93,60 m²
Total
192,90 m²
Cuisine
12,00 m²
Séjour
29,67 m²
Hall d'entrée et WC
11,17 m²
Garage/Buanderie
26,62 m²
Chambre 1
22,03 m²
Chambre 2
17,18 m²
Chambre 3
14,04 m²
Salle de bains
9,40 m²
Hall de nuit
4,33 m²

Pack Zéro Energie
Domus propose gratuitement son pack “Zéro Energie”
18 panneaux photovoltaïques
Puissance installée de 8.000 Watts Crête
Onduleur adapté
Batterie domestique de 5 KWh
Niko Home Control

Maisons réalisées
Fort de son expérience, DOMUS Concept construit des maisons basse énergie 100% traditionnelles. Ces maisons clé sur porte allient ventilation, isolation de pointe, installation de chauffage par pompe à chaleur et panneaux photovoltaïques.





