MC300
Un cahier des
charges clair et
précis
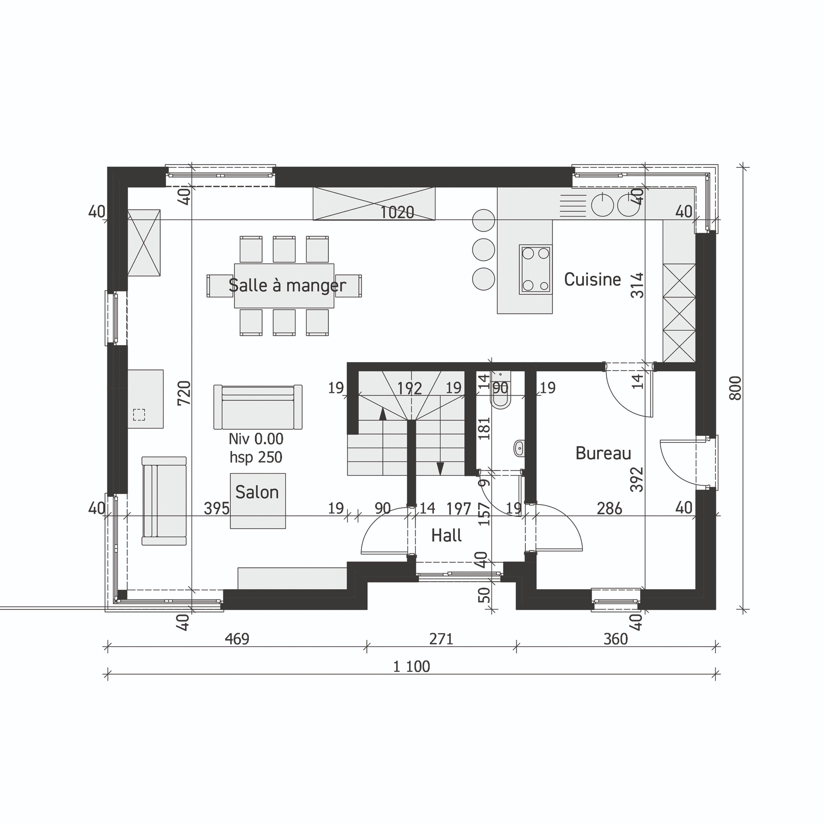
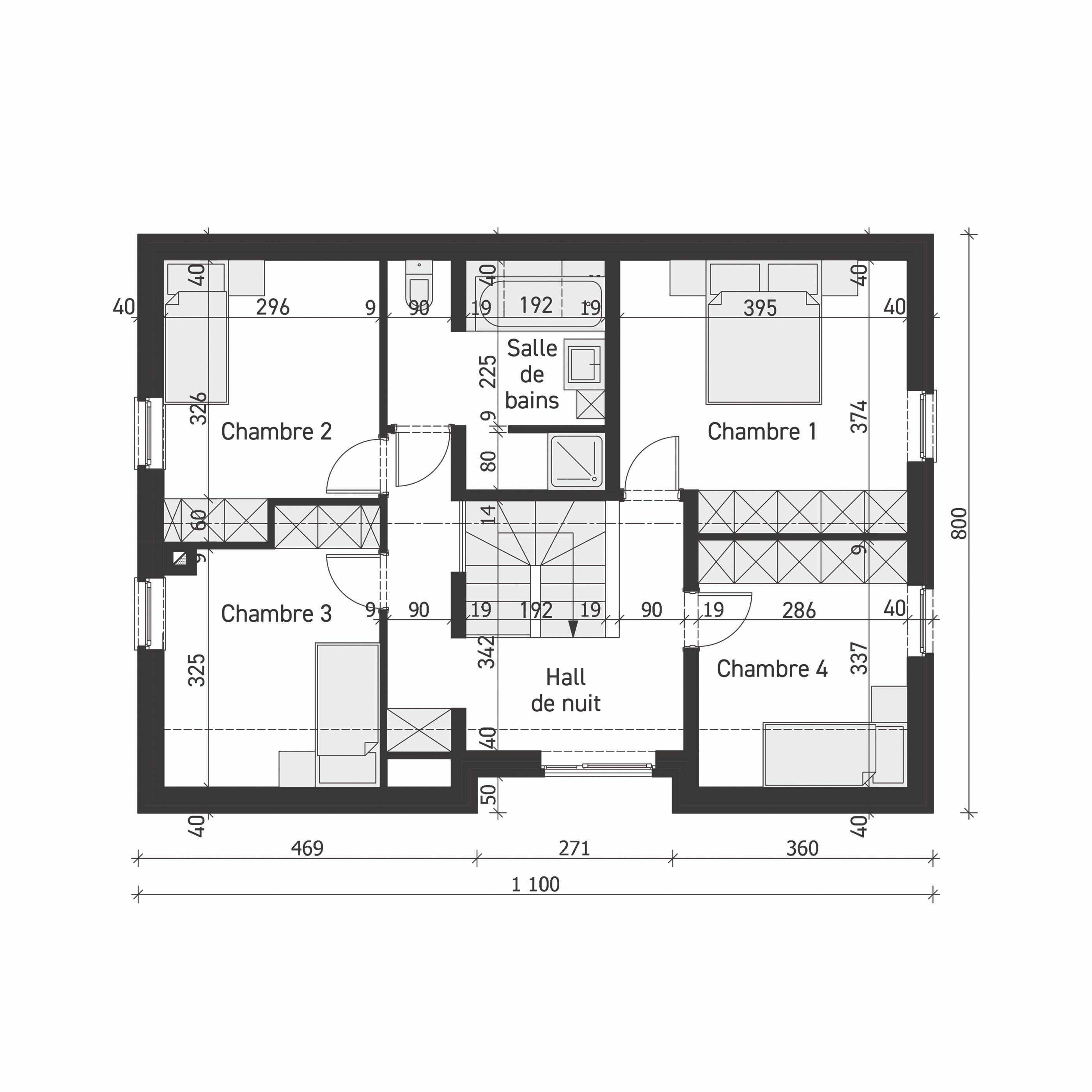
Maison clé sur porte basse énergie proposant une habitation de 240 m² répartis sur 3 niveaux. La maison dispose d’un très grand living, une cuisine, un bureau, 4 grandes chambres, une salle de bain, un garage et une cave.
Nos maisons à toiture à versants vous offrent la possibilité d’aménager le niveau +2.
100%
tradi-
tionnel
Une qualité d'exécution des travaux sans compromis !
Caractéristiques
Rez-de-chaussée
86,65 m²
Etage
86,65 m²
Sous-sol
51,82 m²
Total
225,12 m²
Cuisine
11,52 m²
Séjour
38,09 m²
Hall d'entrée et WC
6,84 m² / 9,12 m²
Bureau
11,21 m²
Garage
28,67 m²
Chambre 1
14,24 m²
Chambre 2
9,60 m²
Chambre 3
9,50 m²
Chambre 4
9,64 m²
Salle de bains
8,45 m²
Hall de nuit
7,44 m²
Hall cave
Cave
14,02 m²
Pack Zéro Energie
Domus propose gratuitement son pack “Zéro Energie”
18 panneaux photovoltaïques
Puissance installée de 8.000 Watts Crête
Onduleur adapté
Batterie domestique de 5 KWh
Niko Home Control
Maisons réalisées
Fort de son expérience, DOMUS Concept construit des maisons basse énergie 100% traditionnelles. Ces maisons clé sur porte allient ventilation, isolation de pointe, installation de chauffage par pompe à chaleur et panneaux photovoltaïques.
.png)