
C560
Un cahier des
charges clair et
précis
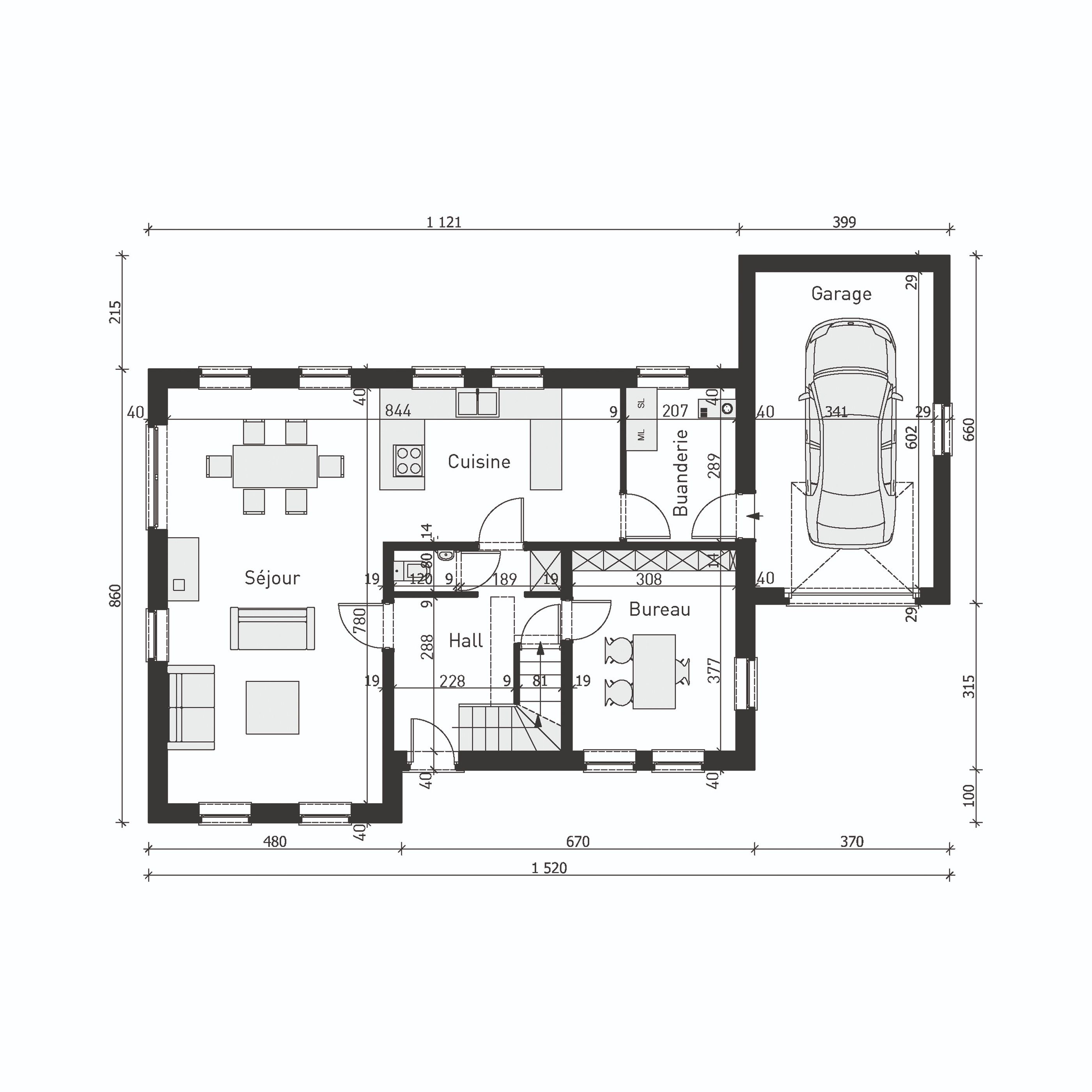
Maison clé sur porte basse énergie proposant une habitation de 204 m² répartis sur 2 niveaux. La maison dispose d’un living, une cuisine, une buanderie, un bureau, 5 grandes chambres, une salle de bain, une salle de douche ainsi que d'un garage.
Nos maisons à toiture à versants vous offrent la possibilité d’aménager le niveau +2.
100%
tradi-
tionnel
Une qualité d'exécution des travaux sans compromis !
Caractéristiques
Rez-de-chaussée
117,24 m²
Etage
87,40 m²
Total
204,64 m²
Cuisine
12,40 m²
Séjour
31,67 m²
Hall d'entrée et WC
11,98 m²
Buanderie
7,80 m²
Bureau
11,61 m²
Garage
20,53 m²
Chambre 1
17,88 m²
Chambre 2
14,85 m²
Chambre 3
9,25 m²
Chambre 4
10,22 m²
Salle de bains
8,36 m²
Salle de douches
5,04 m²
Hall de nuit
5,75 m²

Pack Zéro Energie
Domus propose gratuitement son pack “Zéro Energie”
18 panneaux photovoltaïques
Puissance installée de 8.000 Watts Crête
Onduleur adapté
Batterie domestique de 5 KWh
Niko Home Control

Maisons réalisées
Fort de son expérience, DOMUS Concept construit des maisons basse énergie 100% traditionnelles. Ces maisons clé sur porte allient ventilation, isolation de pointe, installation de chauffage par pompe à chaleur et panneaux photovoltaïques.





