
C740
Un cahier des
charges clair et
précis
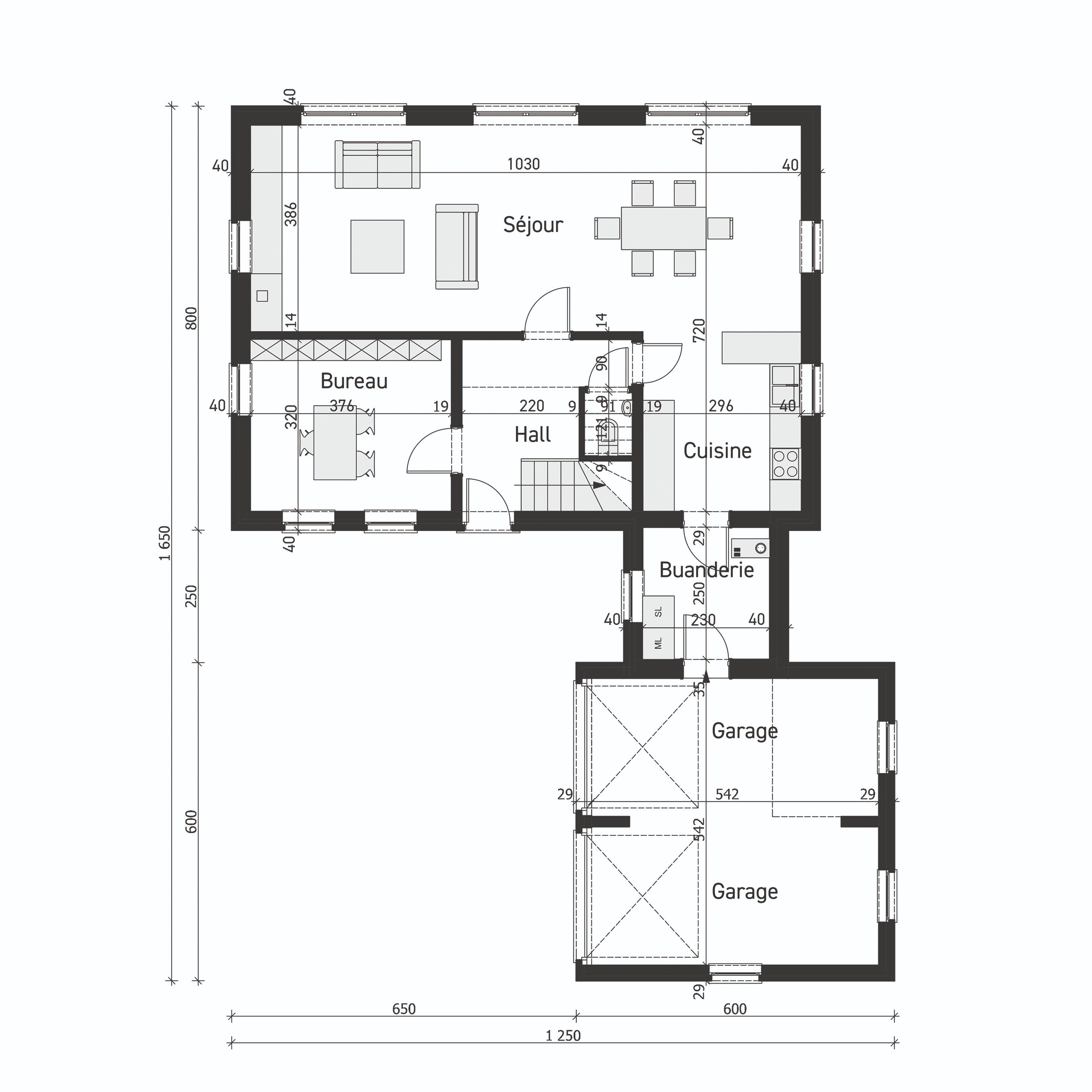
Maison clé sur porte basse énergie proposant une habitation de 255 m² répartis sur 2 niveaux. La maison dispose d’un très grand living, une cuisine, une buanderie, un bureau, 3 grandes chambres, une salle de bain, un grenier ainsi que d'un double garage.
Nos maisons à toiture à versants vous offrent la possibilité d’aménager le niveau +2.
100%
tradi-
tionnel
Une qualité d'exécution des travaux sans compromis !
Caractéristiques
Rez-de-chaussée
132,55 m²
Etage
88,80 m²
Total
221,35 m²
Cuisine
9,47 m²
Séjour
39,76 m²
Hall d'entrée et WC
10,24 m²
Buanderie
5,75 m²
Bureau
12,03 m²
Garage
29,38 m²
Chambre 1
21,31 m²
Chambre 2
12,82 m²
Chambre 3
12,89 m²
Salle de bains
9,44 m²
Hall de nuit
7,86 m²

Pack Zéro Energie
Domus propose gratuitement son pack “Zéro Energie”
18 panneaux photovoltaïques
Puissance installée de 8.000 Watts Crête
Onduleur adapté
Batterie domestique de 5 KWh
Niko Home Control

Maisons réalisées
Fort de son expérience, DOMUS Concept construit des maisons basse énergie 100% traditionnelles. Ces maisons clé sur porte allient ventilation, isolation de pointe, installation de chauffage par pompe à chaleur et panneaux photovoltaïques.





