J400
Un cahier des
charges clair et
précis
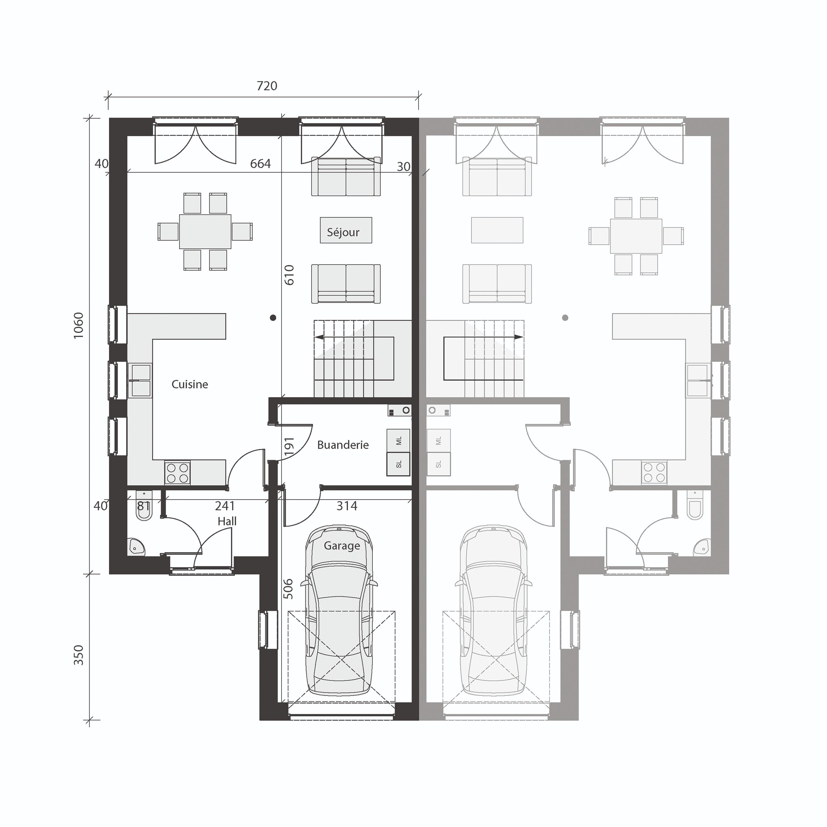
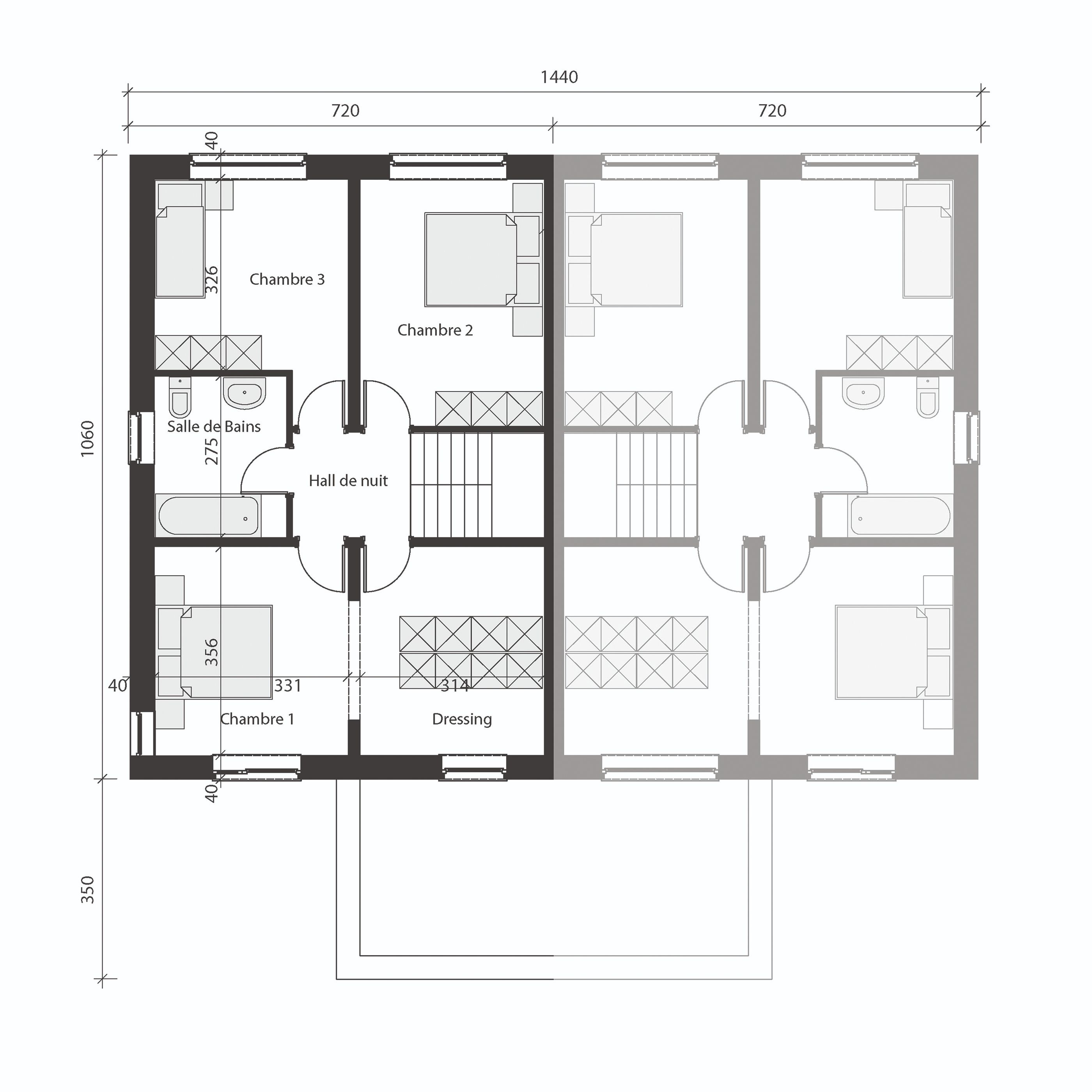
Maison clé sur porte basse énergie proposant une habitation de 165 m² répartis sur 2 niveaux. La maison dispose d’un grand living, une cuisine, une buanderie, 3 grandes chambres et une salle de bain ainsi que d'un garage. Nos maisons jointives peuvent être réalisées en toiture à versants ou en toiture plate.
100%
tradi-
tionnel
Une qualité d'exécution des travaux sans compromis !
Caractéristiques
Rez-de-chaussée
89,20 m²
Etage
76,32 m²
Total
165,52 m²
Cuisine
6,83 m²
Séjour
40,50 m²
Hall d'entrée et WC
5,46 m²
Buanderie
5,99 m²
Garage
15,89 m²
Chambre 1
22,78 m²
Chambre 2
13,38 m²
Chambre 3
11,89 m²
Salle de bains
6,22 m²
Hall de nuit
4,42 m²
Pack Zéro Energie
Domus propose gratuitement son pack “Zéro Energie”
18 panneaux photovoltaïques
Puissance installée de 8.000 Watts Crête
Onduleur adapté
Batterie domestique de 5 KWh
Niko Home Control
Maisons réalisées
Fort de son expérience, DOMUS Concept construit des maisons basse énergie 100% traditionnelles. Ces maisons clé sur porte allient ventilation, isolation de pointe, installation de chauffage par pompe à chaleur et panneaux photovoltaïques.
.png)